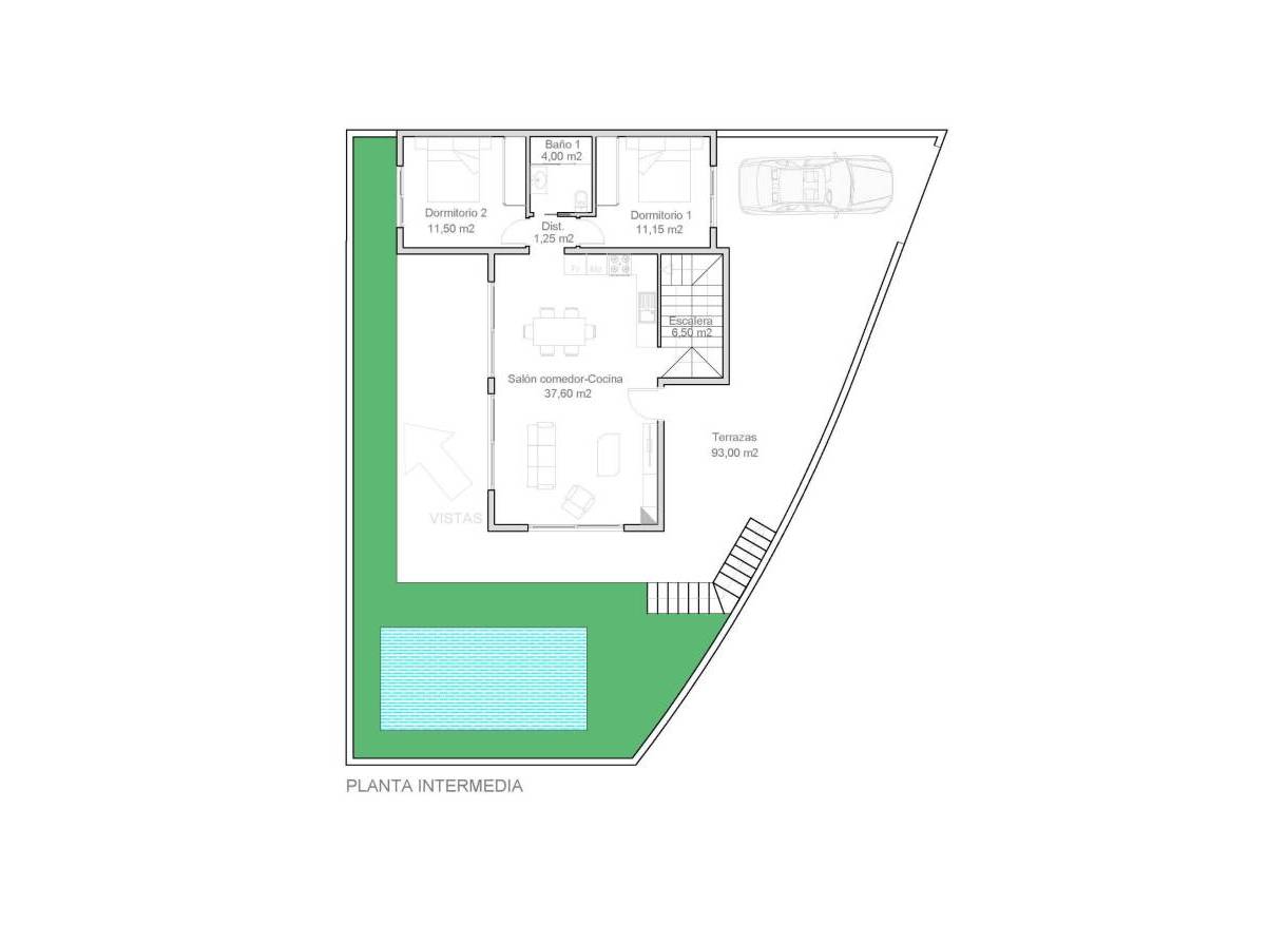
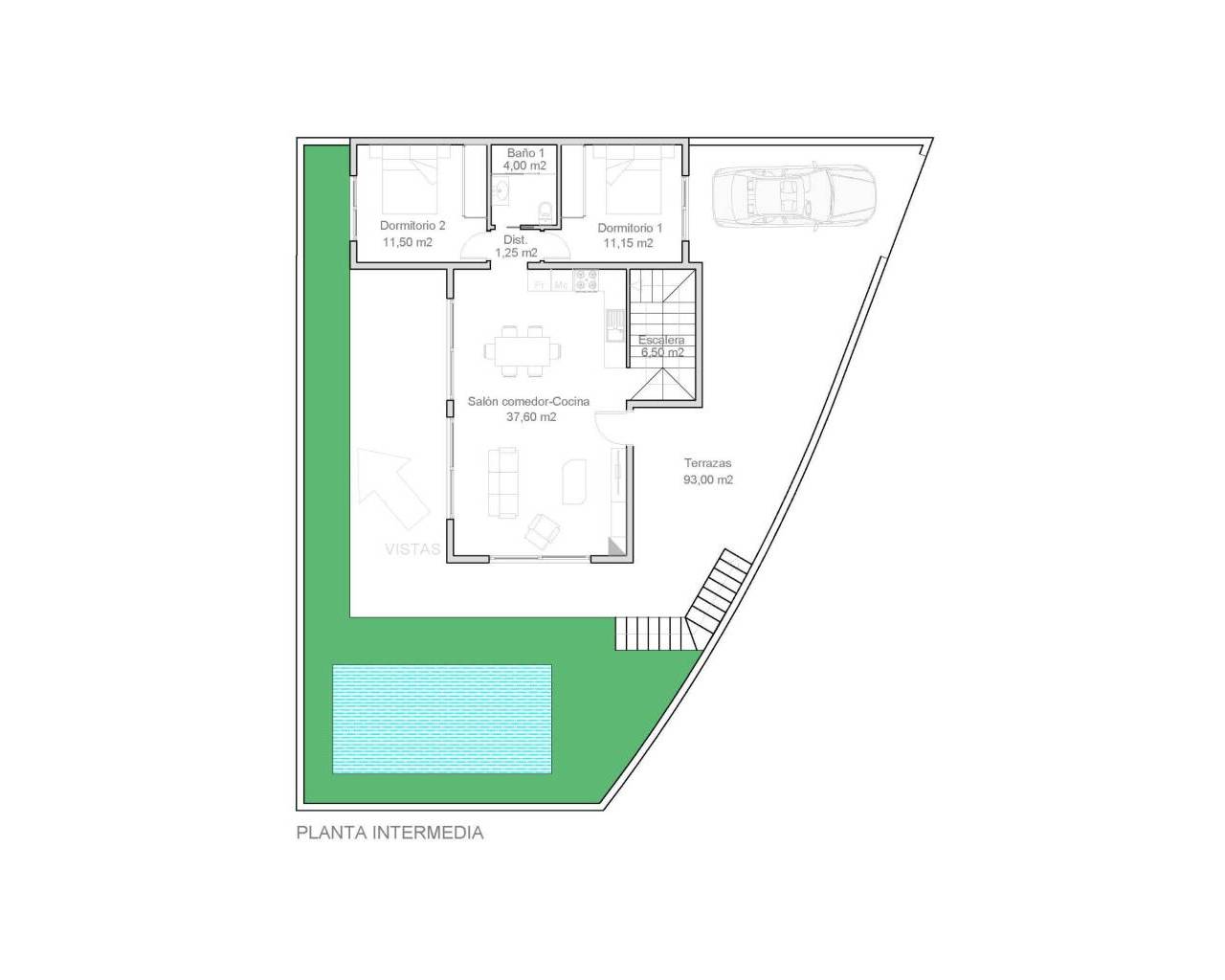
MOOIE GEWELDIGE VILLA MET UITZICHT OP DE GOLFCURSUS "LA MARQUESA"! Deze prachtige villa, gelegen op 50 meter van de golfbaan La Marquesa, heeft niet alleen een helder en prachtig uitzicht en biedt de rust van een rustige omgeving, op een paar meter van het commerciële centrum met winkels, supermarkt, bars en internationale restaurants. Slechts 5 minuten van de stad Rojales met alle voorzieningen en 15 minuten van de spectaculaire stranden met blauwe vlag van Guardamar del Segura. De luchthaven Alicante-Elche ligt op 35 minuten afstand. De villa heeft een perceeloppervlakte van 335 m2 en een bebouwde oppervlakte van 433 m2, verdeeld over 3 verdiepingen, waarvan een semi-kelder doorschijnend is van 126 m2. De villa heeft 3 slaapkamers en 2 badkamers. Het zwembad van 3x6 m en de grote terrassen in de tuin en het zwembad zorgen ervoor dat u het hele jaar door kunt genieten van de zon en het klimaat van de Costa Blanca. Daarnaast heeft de villa een solarium en een grote parkeerplaats. Wonen in een grote moderne villa, genietend van golf, strand, klimaat en mediterrane levensstijl!