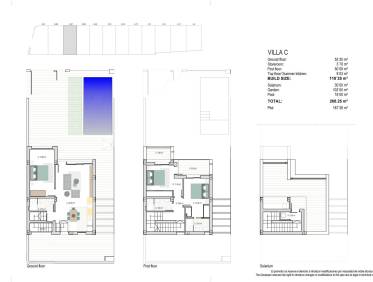
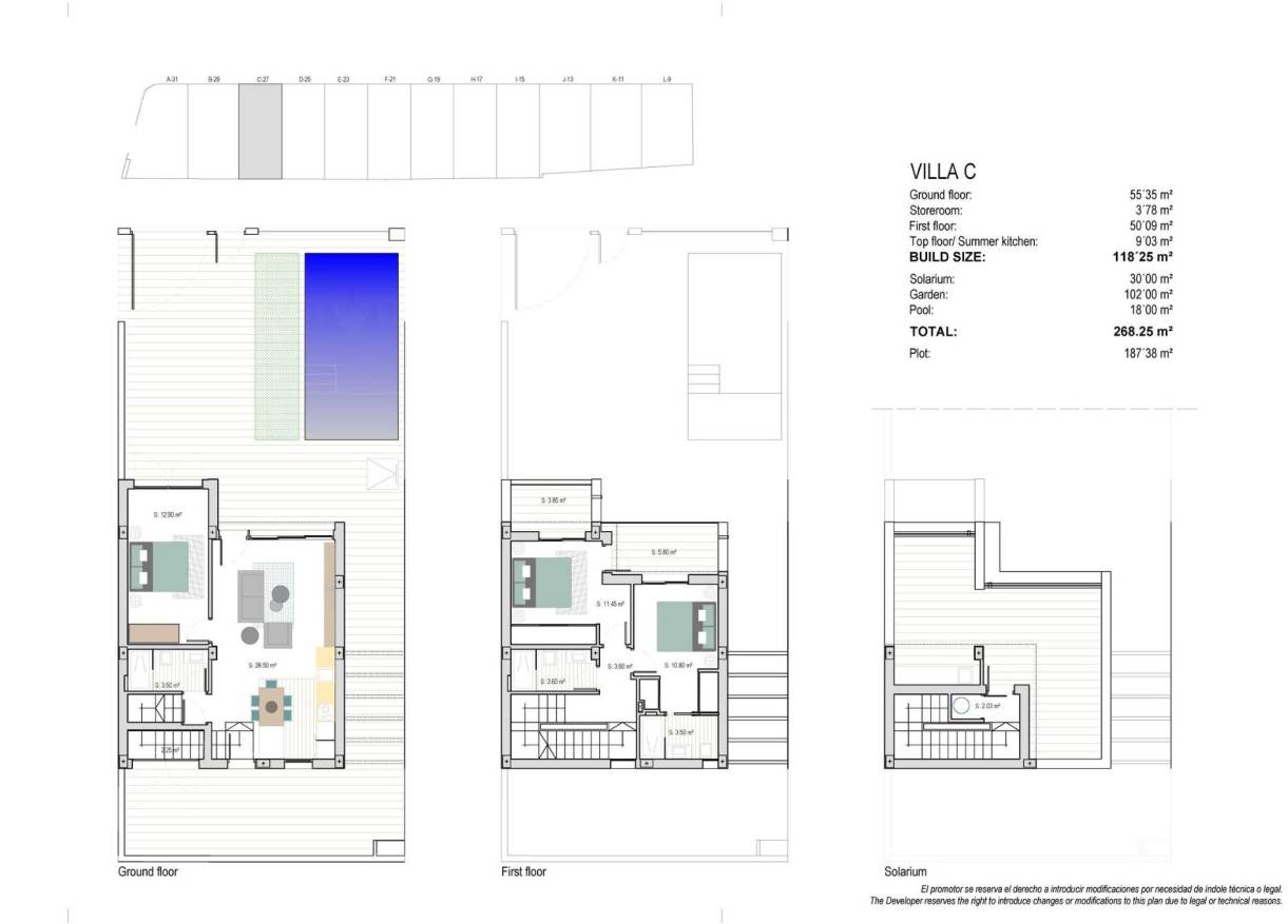
NIEUWBOUW VILLA'S IN LOS ALCAZARES Nieuwbouwproject van 12 exclusieve vrijstaande villa's, elk met een privézwembad en solarium op het dak, gelegen op slechts 150 meter van het prachtige strand van Los Narejos en op slechts 2 minuten lopen van de bruisende Rio Nalon-strip met zijn vele bars en restaurants. Signature huizen, gebouwd volgens de hoogste standaard op een van de beste locaties op de Mar Menor. Alle villa's hebben meer dan 120m2 woonoppervlak plus een privétuin van meer dan 100m2, met off-road parking op het perceel en een privézwembad van 6m x 3m met zonneplateau. Alle witgoed inbegrepen: koel-vriescombinatie, oven, magnetron, keramische kookplaat, afzuigkap, vaatwasser, wasmachine en mini-koelkast in de zomerkeuken. Pre-installatie van airconditioning in het hele huis. Binnen- en buitenverlichting, zonder sierverlichting. Gemotoriseerde rolluiken. De benedenverdieping bestaat uit een lichte woon-eetkamer met open keuken, een badkamer en een extra benedenkamer van 13m2 die kan worden gebruikt als derde slaapkamer, een aparte eetkamer of als garage; deze kamer heeft panoramische glazen deuren die naar buiten opengaan en die het mogelijk maken om een auto binnen te parkeren als dat nodig is (* hoewel deze binnenruimte kan worden gebruikt voor wat de eigenaren willen en zal worden voorbereid als slaapkamer, zal het worden neergezet als een garage op de akten). Er is ook een buitenberging en een zwembadpomp in de patio aan de achterkant. Op de eerste verdieping is er een grote slaapkamer met en-suite badkamer, twee inbouwkasten en directe toegang tot een balkon, plus nog een tweepersoonsslaapkamer met inbouwkasten en toegang tot balkons. Een derde familiebadkamer is ook op de eerste verdieping te vinden. Een trap vanaf de eerste verdieping leidt naar een privédaksolarium met zomerkeuken met gootsteen, werkblad en een kast met een mini-koelkast. Fantastisch uitzicht vanaf het solarium, dankzij de ligging aan zee. Energie-efficiënte thermische isolatie, plus een hoog niveau van geluidsisolatie. Doucheschermen met twee opties beschikbaar. TV- en telefoonaansluitingen in de woonkamer, slaapkamers en in het solarium. Binnendeuren, timmerwerk en inbouwkasten in wit. Dubbele beglazing met optimale bescherming tegen de zon. Warmwatersysteem via een elektrische, regelbare boiler en 1,5kw fotovoltaïsche zonnepanelen. Pre-installatie voor een oplader voor elektrische auto's. Los Alcazares is een populaire kustplaats waar je winkels, bars, restaurants, supermarkten, apotheken, een gezondheidscentrum, taxistandplaatsen en bushaltes vindt. Uitstekende communicatieverbindingen, met de snelweg AP7 vlakbij. De internationale luchthaven van Murcia ligt op minder dan een half uur rijden (40 km) en de luchthaven van Alicante bereik je in minder dan een uur (93 km). Het prestigieuze Roda Golf & Beach Resort, met een door Dave Thomas ontworpen 18-holes golfbaan, ligt op slechts 2,5 km afstand.